张攀1,祝云飞2,王明耀2
(1.山东鲁泰煤业有限公司太平煤矿,山东邹城273517;
2.福州华虹智能科技开发有限公司,福建福州350000)
(1.山东鲁泰煤业有限公司太平煤矿,山东邹城273517;
2.福州华虹智能科技开发有限公司,福建福州350000)
摘 要:在煤矿厚煤层分层开采工作面的巷道掘进中,遇到构造和断层,影响工作面的布置。对断层延展方向的判断和煤厚变化的探测对工作面布置起决定性的作用。以太平煤矿六南02二分层工作面为例,采用矿井地质探测仪对巷道揭露断层的延展方向煤层厚度变化进行了探测,探测结果与实际情况一致,有效地缩短了作业时间,减少了对掘进工程的影响,获得了较好的效果。
关键词:地质探测仪;断层;煤厚;分层开采
山东鲁泰煤业有限公司太平煤矿3号煤层属于表外储量,由于煤层距离第四系底部含水层距离较小,提高上限开采后仍有一部分资源无法采出。太平煤矿从2005年开始进行了厚煤层分层膏体充填开采,取得了很好的效果,有效地防止了第四系底部含水层水的威胁,至2012年7月底,实现了安全回采煤炭资源140余万吨。在六采区南部区域块段按照全部垮落法管理顶板,安全回采了顶分层。在二分层充填开采工作面布置中,继续探测扩大面积后顶部基岩厚度,确保顶部基岩厚度不小于15m,并且探测第四系底部黏土层厚度。为了确保工作面布置合理,符合提高开采上限对岩柱高度要求,需借助矿井地质探测仪对揭露断层进行其延展范围的探测。
1 探测目的
太平煤矿六南02二分层上巷S4号导线点附近受断层影响,巷道顶板煤层厚度变化较大,现场向顶板施工钻探时不能全面探明顶板煤层的厚度变化。为探明六南02二分层上巷S4号导线点附近顶板煤层厚度及六南02二分层上巷揭露断层在巷帮内的延展情况,利用矿井地质探测仪进行施工探测。
2 工作面地质条件
六南02二分层工作面内3号煤层走向50~1710m,煤层倾向950~2610m,煤层倾角0~15°,平均3°,为半亮型煤,亮煤为主,暗煤次之。煤层厚度9.1~9.73m,平均厚9.5m,属稳定煤层,结构简单,上部粉末状,下部块状,煤层坚固性系数f=2.5,下与6煤相距44.9m。煤层基本顶为细砂岩,厚26.5~29.8m,灰白-黄褐色,大部风化,裂隙发育,含石英、长石为主,f=5~6;伪顶为泥岩,厚0.76~1.5m,深灰色,块状,断口平坦,含植物叶化石及碎屑;直接底为泥岩,f=2.5,厚0~0.57m,灰黑色,含少量砂质及植物碎屑化石,f=2.5;老底为细砂岩,厚11.62~12.61m,灰白色,成分以石英及长石为主,发育裂隙,f=5~6。
3 矿井地质探测仪组成及数据采集
3.1 仪器的组成
KDZ1114-6A30矿井地质探测系统由“井下”和“室内”两大部分组成。其中井下部分主要由KDZ1114-6A30-Z矿井地质探测仪主机、检波器、铜锤震源及其触发启动器组成,井下设备均为通过了国家煤矿安全机构的防爆性能检测和安全认证的本安型设备。室内部分主要由通用PC机、打印机、KDZ震波数据处理解释软件组成,其主要功能是对地震勘探波形数据进行转储、深度分析处理和形成成果报告。
3.2 数据采集
采用2组TZBS系列(主频为100Hz)高阻尼传感器进行数据采集。采集所设置的工作参数为:采样频带2500Hz低通;通道数2道;采样间隔80~136μs;固定增益24~48dB;采样长度2048点;采样延迟0.0ms。
本次测试结合井下实际工作条件,在实测过程中采用2道共偏移连续追踪方式和单点接收的方式进行采集数据,锤击反射共偏移采用2道检波器接收,选择合理的偏移距、道间距与步距,同时试验时采用与仪器配套的100Hz的HDQS-100动圈振动速度检波器。在使用检波器时需要检波器与原始巷帮(岩层)接触,并且形成垂直关系。
4 实例分析
本次探测揭露断层在巷帮内的延展情况和导线点S4附近顶板煤层厚度。
4.1 揭露断层在巷道内延展探测
4.1.1 测线布置
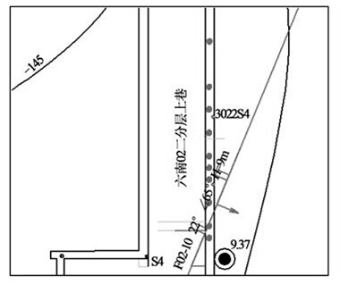
在六南02二分层上巷左帮布置2条测线,布置位置如图1所示。分别采用反射共偏移和单点探测布置方法,源检距为4m,道间距为2m,移动步距为1m;同时在巷帮测线范围内布置8个单点,通过使用单点和反射共偏移种观测手段来追踪揭露断层的延展。
关键词:地质探测仪;断层;煤厚;分层开采
山东鲁泰煤业有限公司太平煤矿3号煤层属于表外储量,由于煤层距离第四系底部含水层距离较小,提高上限开采后仍有一部分资源无法采出。太平煤矿从2005年开始进行了厚煤层分层膏体充填开采,取得了很好的效果,有效地防止了第四系底部含水层水的威胁,至2012年7月底,实现了安全回采煤炭资源140余万吨。在六采区南部区域块段按照全部垮落法管理顶板,安全回采了顶分层。在二分层充填开采工作面布置中,继续探测扩大面积后顶部基岩厚度,确保顶部基岩厚度不小于15m,并且探测第四系底部黏土层厚度。为了确保工作面布置合理,符合提高开采上限对岩柱高度要求,需借助矿井地质探测仪对揭露断层进行其延展范围的探测。
1 探测目的
太平煤矿六南02二分层上巷S4号导线点附近受断层影响,巷道顶板煤层厚度变化较大,现场向顶板施工钻探时不能全面探明顶板煤层的厚度变化。为探明六南02二分层上巷S4号导线点附近顶板煤层厚度及六南02二分层上巷揭露断层在巷帮内的延展情况,利用矿井地质探测仪进行施工探测。
2 工作面地质条件
六南02二分层工作面内3号煤层走向50~1710m,煤层倾向950~2610m,煤层倾角0~15°,平均3°,为半亮型煤,亮煤为主,暗煤次之。煤层厚度9.1~9.73m,平均厚9.5m,属稳定煤层,结构简单,上部粉末状,下部块状,煤层坚固性系数f=2.5,下与6煤相距44.9m。煤层基本顶为细砂岩,厚26.5~29.8m,灰白-黄褐色,大部风化,裂隙发育,含石英、长石为主,f=5~6;伪顶为泥岩,厚0.76~1.5m,深灰色,块状,断口平坦,含植物叶化石及碎屑;直接底为泥岩,f=2.5,厚0~0.57m,灰黑色,含少量砂质及植物碎屑化石,f=2.5;老底为细砂岩,厚11.62~12.61m,灰白色,成分以石英及长石为主,发育裂隙,f=5~6。
3 矿井地质探测仪组成及数据采集
3.1 仪器的组成
KDZ1114-6A30矿井地质探测系统由“井下”和“室内”两大部分组成。其中井下部分主要由KDZ1114-6A30-Z矿井地质探测仪主机、检波器、铜锤震源及其触发启动器组成,井下设备均为通过了国家煤矿安全机构的防爆性能检测和安全认证的本安型设备。室内部分主要由通用PC机、打印机、KDZ震波数据处理解释软件组成,其主要功能是对地震勘探波形数据进行转储、深度分析处理和形成成果报告。
3.2 数据采集
采用2组TZBS系列(主频为100Hz)高阻尼传感器进行数据采集。采集所设置的工作参数为:采样频带2500Hz低通;通道数2道;采样间隔80~136μs;固定增益24~48dB;采样长度2048点;采样延迟0.0ms。
本次测试结合井下实际工作条件,在实测过程中采用2道共偏移连续追踪方式和单点接收的方式进行采集数据,锤击反射共偏移采用2道检波器接收,选择合理的偏移距、道间距与步距,同时试验时采用与仪器配套的100Hz的HDQS-100动圈振动速度检波器。在使用检波器时需要检波器与原始巷帮(岩层)接触,并且形成垂直关系。
4 实例分析
本次探测揭露断层在巷帮内的延展情况和导线点S4附近顶板煤层厚度。
4.1 揭露断层在巷道内延展探测
4.1.1 测线布置
在六南02二分层上巷左帮布置2条测线,布置位置如图1所示。分别采用反射共偏移和单点探测布置方法,源检距为4m,道间距为2m,移动步距为1m;同时在巷帮测线范围内布置8个单点,通过使用单点和反射共偏移种观测手段来追踪揭露断层的延展。

图1 上巷左帮测线布置位置示意
4.1.2 探测结果分析
六南02二分层工作面上巷迎头后方30m段左帮探测结果如图2所示。由图2可知,在布置的测线范围内,存在一个波阻抗界面,当日迎头处左帮内反射界面位置为43m,综合分析是F02-10断层在左帮内的延展。
六南02二分层工作面上巷左帮100m范围内探测结果如图3所示。由图3可知,在六南02二分层上巷左帮100m探测范围内存在一连续的反射相位,能量较强,波阻抗界面明显,综合分析为F02-10断层在左帮内的延展。
4.2 S4附近顶板煤厚探测
4.2.1 测线布置
从导线点S4后6.8m开始,结束点在S4前41.4m,共布置10个单点,每个单点采集16组数据。测点布置如图4所示。
六南02二分层工作面上巷左帮100m范围内探测结果如图3所示。由图3可知,在六南02二分层上巷左帮100m探测范围内存在一连续的反射相位,能量较强,波阻抗界面明显,综合分析为F02-10断层在左帮内的延展。
4.2 S4附近顶板煤厚探测
4.2.1 测线布置
从导线点S4后6.8m开始,结束点在S4前41.4m,共布置10个单点,每个单点采集16组数据。测点布置如图4所示。

图2 六南02二分层上巷左帮30m范围探测结果

图3 六南02二分层上巷左帮100m范围探测结果

图4 S4点附近探测顶煤测点布置示意
4.2.2 探测结果分析
根据六南02二分层工作面上巷S4点附近10个顶板煤层厚度单点探测结果,综合形成S4点附近顶板煤层厚度分布情况,如图5所示。通过巷帮的共偏移追踪探测,可以推断出F02-10断层在左帮探测范围内的延展情况。由于物探解释存在多解性,太平煤矿根据探测结果及对现场情况的分析进行了相应地钻探,实际揭露断层在巷道的延展方向与探测结果一致,煤厚的取点探测和物探结果一致。根据探测结果对工作面上巷及时进行了改道,缩短了面宽,保证了顶部基岩厚度。

图5 S4点附近顶板煤层厚度分布情况
5 结束语
井下地质探测仪使用方便,能在短时间内完成探测,在探测断层位置上具有较强优势。通过本次探测,掌握了六南02二分层工作面揭露断层在巷道内外的延展方向和煤厚变化情况,并与实际情况一致,有效地缩短了作业时间,减少了对掘进工程的影响。
摘自《煤矿开采》2013年第六期



下一篇