赵 虎1、2 王明耀2 蒲文斌1 程旭2
1. 贵州大学资源与环境工程学院,贵阳 550025
2. 福州华虹智能科技股份有限公司,福州 350001
1. 贵州大学资源与环境工程学院,贵阳 550025
2. 福州华虹智能科技股份有限公司,福州 350001
摘要:那罗寨煤矿位于云贵高原的贵州六盘水市,该矿煤层地质构造较为复杂,目前11#煤层已经形成的工作面,但是其工作面内构造较为复杂、煤层不稳定,矿方对于是否开拓本采面意见不统一,故需利用有效的探测手段对该工作面是否高效安全回采进行评估评价,本次实验采用矿井无线电波透视仪法及矿井直流电法综合物探方法进行工作面探测,为贵州煤矿不稳定煤层工作面回采提供可靠技术支持。
关键词:地质构造,煤层不稳定,综合物探方法,矿井无线电波透视仪,矿井直流电法
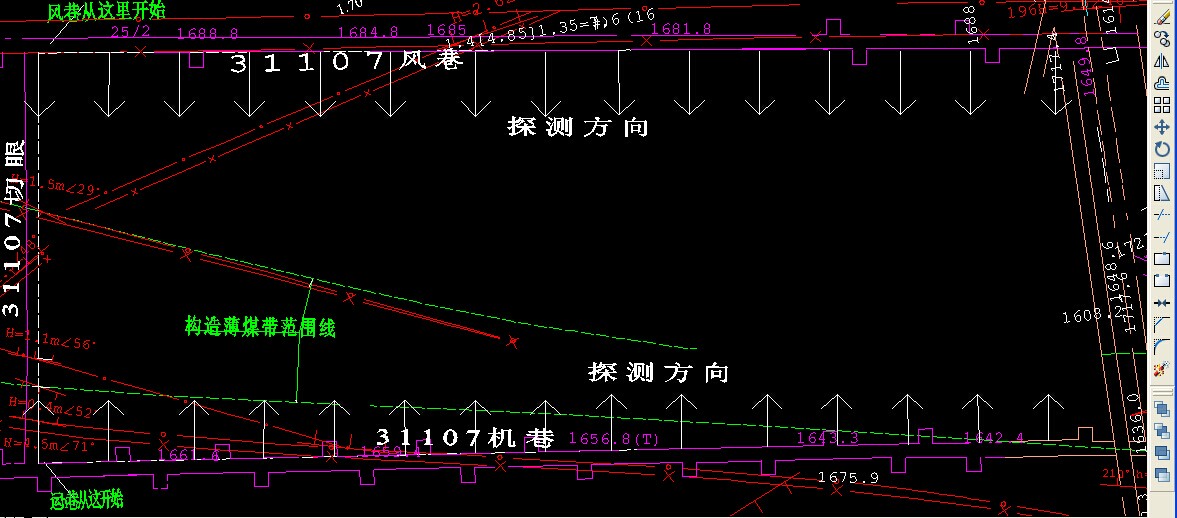
1 工程概况
本次探测地点为那罗寨矿31107工作面,为11号煤层,二叠纪沉积,该工作面的煤层平均厚度大约1.1m,倾角15°;本工作面宽120m,长为190m,根据传统地质资料分析,该工作面内有两条大断层发育,此断层是否伴生小断层及内部是否存在隐伏断层,为查明整个工作面内的煤层赋存及构造发育情况,同时对该工作面煤层厚度稳定性及是否具有开采价值进行评估,利用综合物探技术对31107工作面进行探测。探测的起始位置位于31107外切眼处,探测的工作面长度由切眼位置至切眼后退180m,具体测线布置见图1:

图1 现场工作面及测线布置示意图
2 现场探测及施工方法
本次探测所采用福州华虹智能科技股份有限公司研发的YDT88矿用无线电波透视仪及YDZ16(B)多道矿用并行直流电法仪。无线电波透视法就是电磁波穿过煤层途中遇到断层、陷落柱或其它构造时,波能量被吸收或完全被屏蔽,则在接收巷道收到微弱信号或收不到透射信号,形成所谓的透视异常;矿井直流电法则是根据各种岩石、矿石的电学性质之间的差异为基础,利用人工电场在空间和时间上的分布规律,来解决探测地质构造富水性的勘探方法①~⑤;由于该工作面相对较小,无线电波透视仪接收频率选取365k,无线电波法频率越高分辨率就越高,但是其探测深度较小;本次探测使用频率为365k,既满足探测深度,又有较高的分辨率⑥~⑩;由于两款仪器均为电法类仪器,为减少相互干扰,故先用无线电波法,后用直流电法探测;探测任务及数据量,见表1:
表1 现场探测工程任务表

3 直流电法结果分析
经数据处理、分析,获得工作面左右帮两条测线的视电阻率剖面图,图中不同的色调表示不同的视电阻率值,并且遵循色调从冷色调到暖色调表示视电阻率值不断升高的规律,如下图3所示为直流电法单勘探线视电阻率值剖面图。
1、在回风巷左帮距切眼58m位置处存在异常区1,根据视电阻率图可以看出在此位置处整体视电阻率值发生了较为明显的变化,推测为岩性发生了变化,此处为断层可能性较大。在距切眼位置90m-125m处存在异常区2、3,由于异常区2、3左右两侧阻值变化较大,推测异常2、3为构造区域。
2、在运输巷右帮距切眼38m位置处存在异常区4,根据视电阻率图可以看出在此位置处整体视电阻率值发生了较为明显的变化,为岩性发生了变化,推测此处为断层可能性较大。在距切眼位置105m处存在异常区5,由于异常区5左右两侧阻值变化非常大,在异常区5右边出现了较为明显的低阻区域,推测为煤层产状变化区域。
综合2条直流电法勘探线可以得出,该工作面内部岩层稳定性较差,地质构造较为复杂,裂隙发育较多。

图2 31107工作面两巷直流电法探测结果
4 无线电波透视CT实测场强平面成像解释图

图3 无线电波透视CT实测场强平面成像解释图
表2 31107工作面场强法探测异常区情况表

表2 31107工作面场强法探测异常区情况表

5 结论及建议
通过直流电法及无线电波透视法分析,此工作面地质构造较复杂,煤层稳定性较差,根据物探结果分析,我们得出此工作面煤层稳定性结果图:

图4 综合分析结果图
1、从视电阻率示意图上来看,因为煤与岩石的导电性不同,所以该工作面内煤层产状变化较大,存在较多发育的断层。建议在物探异常区风巷63m、95m、160m、213m、251m处,运巷58m、125m处(由于从切眼测量距离不同和巷道的限制位置可能偏差2-5m)进行钻探验证。
2、通过直流电法及无线电波法综合比较推断出图3结果,由于此巷道190m,而变薄及稳定煤层在工作面的比例为33.3%,所占比例较低,故建议此工作面不建议开采。
3、提前对薄煤层工作面进行地质预测预报,为薄煤层工作面回采提供较为详细的资料,为矿上经济高效开采提供技术支持。
4、矿上根据物探结果分别在对应位置打钻验证后,异常位置准确,煤层稳定性与物探结果基本吻合,目前此工作面已经放弃开采。
参考文献:
3、提前对薄煤层工作面进行地质预测预报,为薄煤层工作面回采提供较为详细的资料,为矿上经济高效开采提供技术支持。
4、矿上根据物探结果分别在对应位置打钻验证后,异常位置准确,煤层稳定性与物探结果基本吻合,目前此工作面已经放弃开采。
参考文献:
[1] 李水祥, 张现辉. 直流电法超前探测四极双图法假异常消除技术[J]. 煤炭学报. 2006, 31(增刊).
[2] 吴荣新, 刘盛东, 周官群. 高分辨地电阻率法探测煤矿地质异常体[J]. 煤炭科学技术. 2007(7).
[3] 张平松, 刘盛东, 曹煜. 坑道掘进立体电法超前预报技术研究[J]. 中国煤炭地质. 2009. 21(2): 50-53.
[4] 刘金峰, 霍振奇. 直流电三点源超前探测技术的创新与应用[J]. 河北煤炭. 2006(6): 7-9.
[5] 韩德品, 张连福, 龚世龙. 采煤工作面内陷落柱超前探测技术与应用[J]. 煤炭学报. 2006, 25(增): 97~100.
[6]刘天放, 李志聃. 矿井地球物理勘探[M] . 北京: 煤炭工业出版社, 1993.
[7]刘树才,岳建华,刘志新.煤矿水文物探技术与应用[M].徐州:中国矿业大学出版社,2005
[8]曾方禄,王永胜,张小鹤,等.矿井音频电透视及其应用.煤田地质与勘探,1997
[9] 张万辉,邹栓营WKT—E无线电波坑透仪在石壕煤矿的应用[J].中州煤炭,2008(2):64.
[10] 李刚.WKTCT系统无线电坑透仪在杜儿坪矿的应用[J].山西焦煤科技,2005(5):18-19.
作者简介:赵虎(1986-),男,安徽蚌埠人,研究生,研究方向为矿井物探。Tel:18755218606,E-mail:zhaohu_8686@126.com
[2] 吴荣新, 刘盛东, 周官群. 高分辨地电阻率法探测煤矿地质异常体[J]. 煤炭科学技术. 2007(7).
[3] 张平松, 刘盛东, 曹煜. 坑道掘进立体电法超前预报技术研究[J]. 中国煤炭地质. 2009. 21(2): 50-53.
[4] 刘金峰, 霍振奇. 直流电三点源超前探测技术的创新与应用[J]. 河北煤炭. 2006(6): 7-9.
[5] 韩德品, 张连福, 龚世龙. 采煤工作面内陷落柱超前探测技术与应用[J]. 煤炭学报. 2006, 25(增): 97~100.
[6]刘天放, 李志聃. 矿井地球物理勘探[M] . 北京: 煤炭工业出版社, 1993.
[7]刘树才,岳建华,刘志新.煤矿水文物探技术与应用[M].徐州:中国矿业大学出版社,2005
[8]曾方禄,王永胜,张小鹤,等.矿井音频电透视及其应用.煤田地质与勘探,1997
[9] 张万辉,邹栓营WKT—E无线电波坑透仪在石壕煤矿的应用[J].中州煤炭,2008(2):64.
[10] 李刚.WKTCT系统无线电坑透仪在杜儿坪矿的应用[J].山西焦煤科技,2005(5):18-19.
作者简介:赵虎(1986-),男,安徽蚌埠人,研究生,研究方向为矿井物探。Tel:18755218606,E-mail:zhaohu_8686@126.com



下一篇